
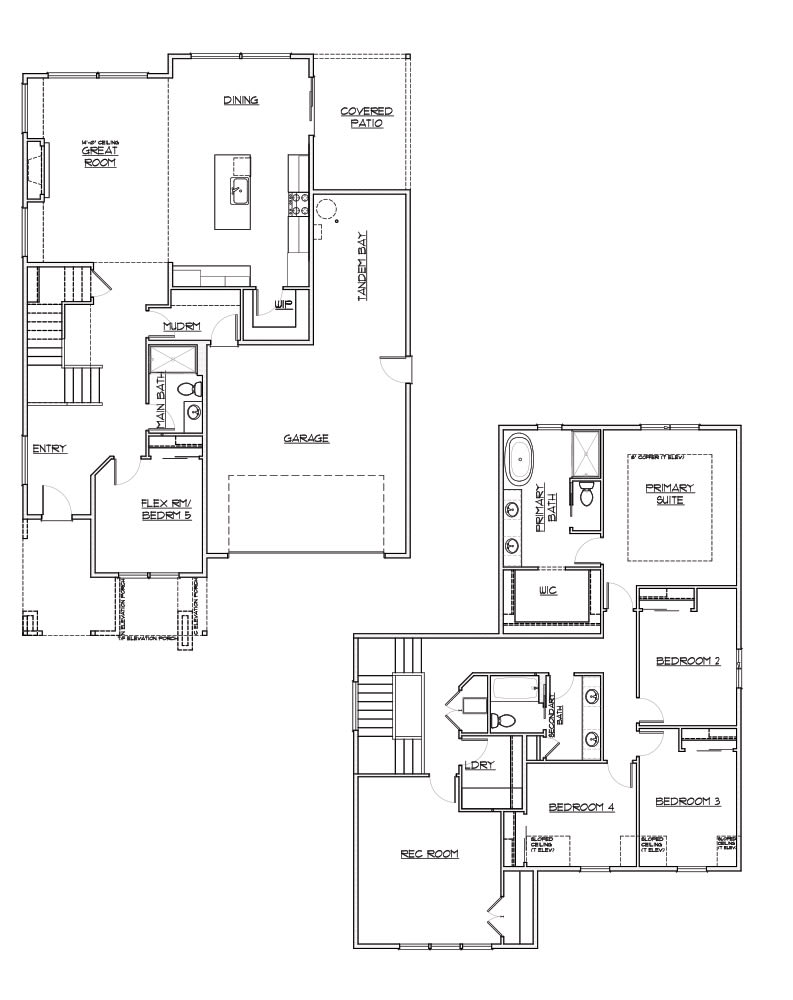
Floorplan
The Shasta - Petrosa
Starting from $929,900

Receive updates about this floorplan directly to your inbox.
*Renderings are artists' conceptions and are not intended to be an actual depiction of the building, fencing, walkway, driveway, or landscaping. In the interest of continuous improvements, Pahlisch Homes Inc. reserves the right to change plat artwork without prior notice or obligations.








